Лесопарковая
Двухуровневая квартира.
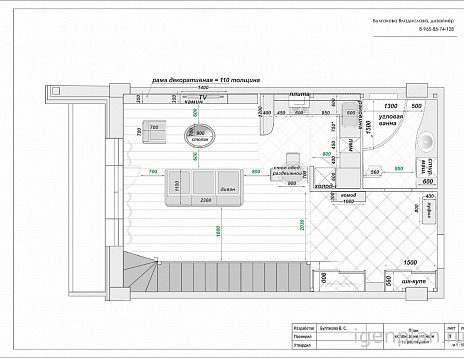
Мы оказались в квартире с потолками 4 с лишним метра. Цель дизайн-проекта - поднять второй этаж (антресоль) со вторым светом, разместить лестницу функциональную, максимально задействовать пространство для полезного хранения вещей, т.к. эта проблема всегда имеет место быть. Далее, зонировать большой зал кухней, гостиной, холлом и объединенным санузлом. Кухонную зону важно было скрыть так, чтобы с холла открывался общий вид гостиной, а рабочая зона на кухне осталась "за кулисами".
Задача непростая. Мне пришлось подстраиваться под уже существующие окна, проемы, балки, полуколонны, а также - расположение санузла и кухни, и труб с канализацией и, самое главное, будущего перекрытия второго этажа со стойками-колоннами его поддерживающими, которое должно занимать не более 40 % от общей площади. Вообщем, от всего перечисленного зависела будущая расстановка мебели и лестницы.
В итоге, посоветовавшись с моим знакомым специалистом по перепланировкам о конфигурации антресоли, я начала готовить основу под технический проект второго этажа. Когда был готов чертеж-основа с лестницей, и уже был четко виден фронт работ по возможным расстановкам мебели, нашлось место для всего задуманного. При входе в квартиру нас встречает достаточно просторный холл, слева вместительный шкаф-купе, справа комод с роскошным презентабельным зеркалом. Санузел также располагается справа, дверь в него немного пришлось перенести, для большей вместительности сантехники и мебели с 2-х сторон. Из холла открывается легкий светлый образ гостиной с классическим камином, некий образ загородного дома. За стеной скрывается рабочая зона кухни с барной стойкой, её не видно, в принципе, это я считаю самым большим плюсом в данной планировке. Лестница у стены слева вальяжная, с относительно широкими ступенями, под ней функционально расположилась система хранения. Всё же я думаю, что лестница - это очень важная часть интерьера, и от её внешнего вида зависит, как будет восприниматься интерьер в целом. Так как она светлая, с узорами из ковки, и перилами под выбеленный старинный дуб, то оставляет общее впечатление легкости и визуально не "давит" на обстановку. Подумали и о безопасности - ограждения специально сделаны широкими, лестница не "крутая", ведь в квартире будут дети.
Заказчица хотела светлый интерьер в пастельных тонах с яркими акцентами и классическими элементами. В принципе, считаю, что данный проект функционально продуман, и все пожелания заказчицы удовлетворены... Мне было очень интересно продумывать планировку, расположение и конфигурацию лестницы, да и вообще, работать над этим дизайн-проектом.
Использованные товары и материалы
0 |
Поделиться:
- Дизайнеры:
Лесопарковая
Двухуровневая квартира.
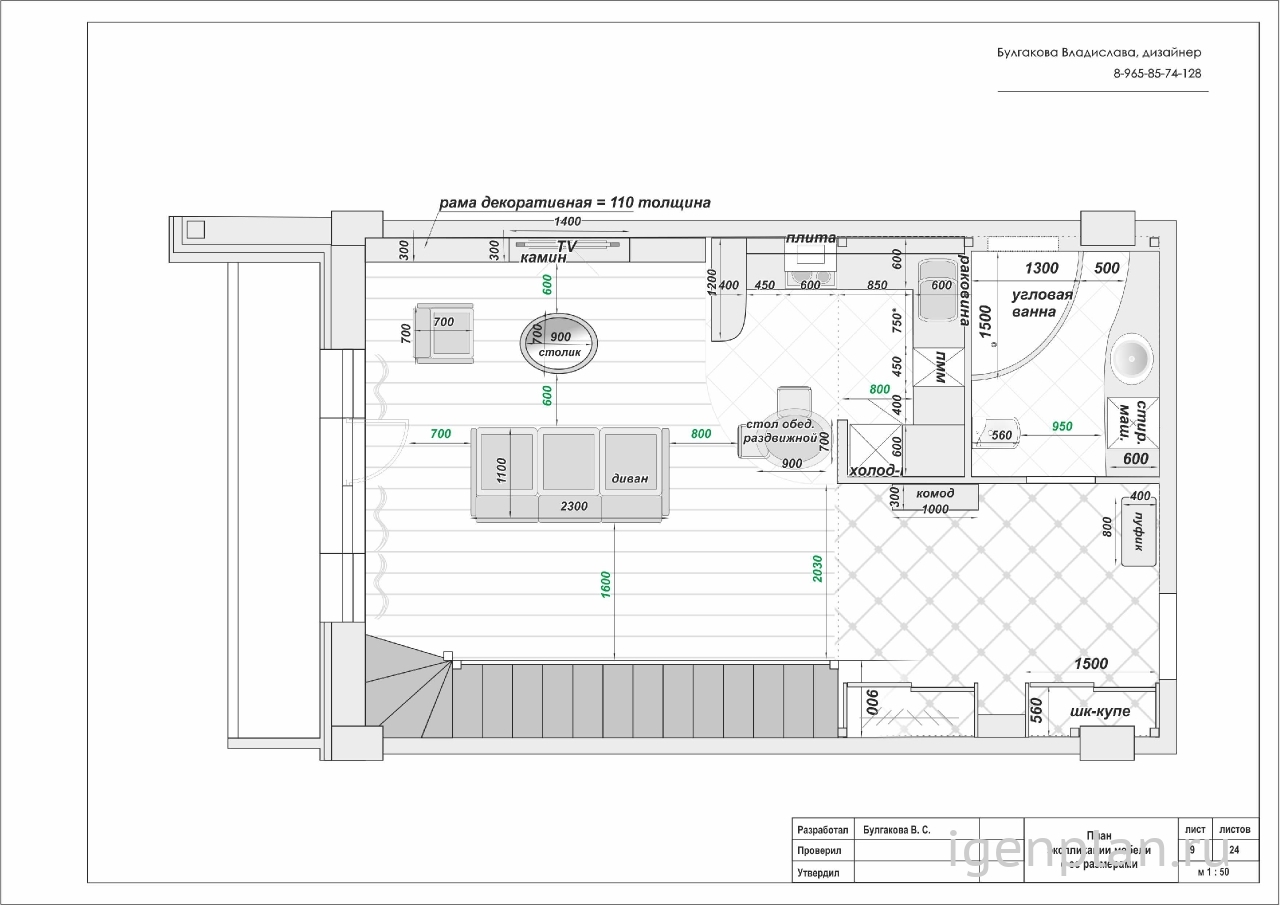
Мы оказались в квартире с потолками 4 с лишним метра. Цель дизайн-проекта - поднять второй этаж (антресоль) со вторым светом, разместить лестницу функциональную, максимально задействовать пространство для полезного хранения вещей, т.к. эта проблема всегда имеет место быть. Далее, зонировать большой зал кухней, гостиной, холлом и объединенным санузлом. Кухонную зону важно было скрыть так, чтобы с холла открывался общий вид гостиной, а рабочая зона на кухне осталась "за кулисами".
Задача непростая. Мне пришлось подстраиваться под уже существующие окна, проемы, балки, полуколонны, а также - расположение санузла и кухни, и труб с канализацией и, самое главное, будущего перекрытия второго этажа со стойками-колоннами его поддерживающими, которое должно занимать не более 40 % от общей площади. Вообщем, от всего перечисленного зависела будущая расстановка мебели и лестницы.
В итоге, посоветовавшись с моим знакомым специалистом по перепланировкам о конфигурации антресоли, я начала готовить основу под технический проект второго этажа. Когда был готов чертеж-основа с лестницей, и уже был четко виден фронт работ по возможным расстановкам мебели, нашлось место для всего задуманного. При входе в квартиру нас встречает достаточно просторный холл, слева вместительный шкаф-купе, справа комод с роскошным презентабельным зеркалом. Санузел также располагается справа, дверь в него немного пришлось перенести, для большей вместительности сантехники и мебели с 2-х сторон. Из холла открывается легкий светлый образ гостиной с классическим камином, некий образ загородного дома. За стеной скрывается рабочая зона кухни с барной стойкой, её не видно, в принципе, это я считаю самым большим плюсом в данной планировке. Лестница у стены слева вальяжная, с относительно широкими ступенями, под ней функционально расположилась система хранения. Всё же я думаю, что лестница - это очень важная часть интерьера, и от её внешнего вида зависит, как будет восприниматься интерьер в целом. Так как она светлая, с узорами из ковки, и перилами под выбеленный старинный дуб, то оставляет общее впечатление легкости и визуально не "давит" на обстановку. Подумали и о безопасности - ограждения специально сделаны широкими, лестница не "крутая", ведь в квартире будут дети.
Заказчица хотела светлый интерьер в пастельных тонах с яркими акцентами и классическими элементами. В принципе, считаю, что данный проект функционально продуман, и все пожелания заказчицы удовлетворены... Мне было очень интересно продумывать планировку, расположение и конфигурацию лестницы, да и вообще, работать над этим дизайн-проектом.
Двухуровневая квартира.
Мы оказались в квартире с потолками 4 с лишним метра. Цель дизайн-проекта - поднять второй этаж (антресоль) со вторым светом, разместить лестницу функциональную, максимально задействовать пространство для полезного хранения вещей, т.к. эта проблема всегда имеет место быть. Далее, зонировать большой зал кухней, гостиной, холлом и объединенным санузлом. Кухонную зону важно было скрыть так, чтобы с холла открывался общий вид гостиной, а рабочая зона на кухне осталась "за кулисами".
Задача непростая. Мне пришлось подстраиваться под уже существующие окна, проемы, балки, полуколонны, а также - расположение санузла и кухни, и труб с канализацией и, самое главное, будущего перекрытия второго этажа со стойками-колоннами его поддерживающими, которое должно занимать не более 40 % от общей площади. Вообщем, от всего перечисленного зависела будущая расстановка мебели и лестницы.
В итоге, посоветовавшись с моим знакомым специалистом по перепланировкам о конфигурации антресоли, я начала готовить основу под технический проект второго этажа. Когда был готов чертеж-основа с лестницей, и уже был четко виден фронт работ по возможным расстановкам мебели, нашлось место для всего задуманного. При входе в квартиру нас встречает достаточно просторный холл, слева вместительный шкаф-купе, справа комод с роскошным презентабельным зеркалом. Санузел также располагается справа, дверь в него немного пришлось перенести, для большей вместительности сантехники и мебели с 2-х сторон. Из холла открывается легкий светлый образ гостиной с классическим камином, некий образ загородного дома. За стеной скрывается рабочая зона кухни с барной стойкой, её не видно, в принципе, это я считаю самым большим плюсом в данной планировке. Лестница у стены слева вальяжная, с относительно широкими ступенями, под ней функционально расположилась система хранения. Всё же я думаю, что лестница - это очень важная часть интерьера, и от её внешнего вида зависит, как будет восприниматься интерьер в целом. Так как она светлая, с узорами из ковки, и перилами под выбеленный старинный дуб, то оставляет общее впечатление легкости и визуально не "давит" на обстановку. Подумали и о безопасности - ограждения специально сделаны широкими, лестница не "крутая", ведь в квартире будут дети.
Заказчица хотела светлый интерьер в пастельных тонах с яркими акцентами и классическими элементами. В принципе, считаю, что данный проект функционально продуман, и все пожелания заказчицы удовлетворены... Мне было очень интересно продумывать планировку, расположение и конфигурацию лестницы, да и вообще, работать над этим дизайн-проектом.
Слов нет, это надо видеть
Размещение работы согласовано с Автором. Следующий интерьер в этом разделе: Западный луч

